
|
SUBDIVISIONS
|
|
|
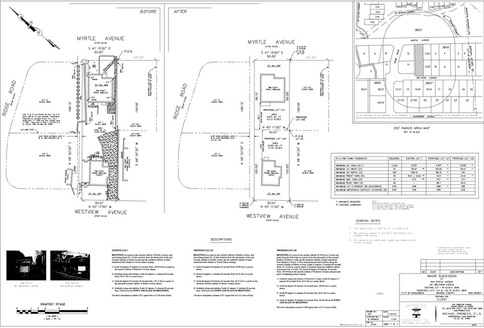
A subdivision survey consists in the subdivision
of a tract of land into smaller parcels, conforming to local ordinances.
A plot or a map shows monumentation and mathematical survey data. |
|
|
Recent projects:
(click to enlarge) |
|